













































Bedrooms
Bathrooms
Parking
Lot Size
Taxes
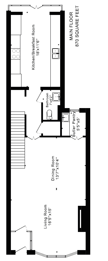
This sumptuous, stylish fully renovated Designer’s own home is located on one of the most sought after streets in prime Cabbagetown. Brilliantly reimagined to create a sophisticated contemporary interior this exquisite home is the ultimate expression of refined urban living and design excellence that anticipates your every whim and desire. Attention to detail, luxurious materials, meticulous consideration to layout and precision craftsmanship are the hallmarks of this extraordinary property featured in Canadian House and Home magazine. The light and bright open concept living and dining rooms have a large bay window and Butler’s pantry with wet bar for entertaining with ease. A wood burning fireplace is perfect for quiet nights fireside, or entertaining family and friends and has an elegant custom stone mantle with oh-so Canadian whimsical hand carved beaver motif. The bespoke eat-in kitchen has a walnut centre island, high-end integrated appliances, marble counters and walk out to private backyard deck and garden. Meticulously planned use of space allows for hidden closets and a discrete main floor powder room with custom mosaic tile wall and integrated stone sink. Bespoke millwork, natural stone, wide plank hardwood floors, floor to ceiling windows and grand skylights create a light filled luxurious ambiance.
A gorgeous master retreat has a moody curved wall anteroom with hidden closets and pull out laundry drawers leading to the vaulted ceiling bedroom with custom walnut built-in cabinetry and impressive 4-piece ensuite with separate shower and glorious floating soaker tub that fills from the ceiling! A sleek den with built-in walnut desk serves as home office with a truly astounding built-in staircase that doubles as hidden office storage and ascends to a light filled sleeping loft with walk in closet and skylight to the stars. A second bedroom and bath at the back of house has double closets and custom floor to ceiling square bay window overlooking the lush backyard garden.
Wired for sound with in-ceiling speakers a whole home audio system lets you control music and lighting on the go! A Finished basement has cozy family room, a roughed-in fourth bath and massive storage room with walk out to secret hidden stair under the deck! Beautifully landscaped gardens front and back include an irrigation system and parking available off rear lane in the heart of Cabbagetown just steps to Parliament Street and the fabled Riverdale Farm.